新聞資訊
新聞資訊
- 《山東省消防條例》2025最新版 2026年1月1日實施
- 室外疏散樓梯2m范圍內可以設置防火窗嗎?
- 貨梯前裝防火卷簾隔離,消防聯動測試貨梯需要聯動迫降嗎?
- 什么是消防水炮的射流半徑、監控半徑、最大保護半徑
- 儲油罐冷卻系統的選擇問題
聯系我們
廠家:智淼消防檢測設備廠家
手機:15262554119
電話:4006-598-119
郵箱:18751140119@163.com
地址:江蘇省蘇州市常熟市黃河路275號119室
常見問題
消防設計違反強條導致驗收不通過,開發商起訴設計單位
- 作者:四川消防檢測設備
- 發布時間:2023-05-05 14:52:53
- 來源:http://www.chinayuntop.com/
- 點擊:768

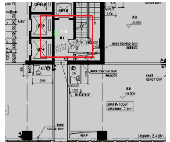
《建筑設計防火規范》GB50016-2014(2018年版):
7.3.5 除設置在倉庫連廊、冷庫穿堂或谷物筒倉工作塔內的消防電梯外,消防電梯應設置前室,并應符合下列規定:
1 前室宜靠外墻設置,并應在首層直通室外或經過長度不大于30m 的通道通向室外;
2 前室的使用面積不應小于6.0m2,前室的短邊不應小于2.4m;與防煙樓梯間合用的前室,其使用面積尚應符合本規范第5.5.28條和第6.4.3條的規定;
3 除前室的出入口、前室內設置的正壓送風口和本規范第5.5.27條規定的戶門外,前室內不應開設其他門、窗、洞口;
4 前室或合用前室的門應采用乙級防火門,不應設置卷簾。
《建筑防火通用規范》GB55037-2022:
2.2.8 除倉庫連廊、冷庫穿堂和筒倉工作塔內的消防電梯可不設置前室外,其他建筑內的消防電梯均應設置前室。消防電梯的前室應符合下列規定:
1 前室在首層應直通室外或經專用通道通向室外,該通道與相鄰區域之間應采取防火分隔措施。
2 前室的使用面積不應小于6.0m2,合用前室的使用面積應符合本規范第7.1.8條的規定;前室的短邊不應小于2.4m。
3 前室或合用前室應采用防火門和耐火極限不低于2.00h的防火隔墻與其他部位分隔。除兼作消防電梯的貨梯前室無法設置防火門的開口可采用防火卷簾分隔外,不應采用防火卷簾或防火玻璃墻等方式替代防火隔墻。
- 上一篇:噴淋系統末端試水裝置監控系統的設計
- 下一篇:酒店給排水系統設計中的常見的問題(1)






























蘇公網安備32058102002160號
客服QQ